Finální návrh
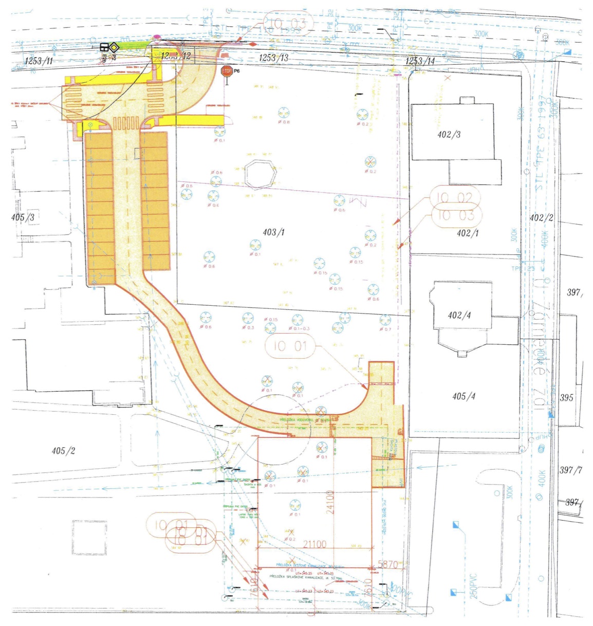
V pondělí jsem byl na Městském úřadě a zjišťoval stav postupu k zachování parku. V současné době je zpracována projektantem akce dokumentace k vedení přístupové cesty mimo park a rozšíření parkovacích míst v místě současného travnatého pásu vedle parku. Návrh vyvolá drobné úpravy na stávajících objektech – přesun sociálky o 3–4 m a zřízení opěrné zídky podél východní strany budované parkovací plochy. Tento návrh bude předložen stavebnímu úřadu jako změna stavby před dokončením a dále pak dotačnímu orgánu k posouzení dopadu na čerpání dotace (viz situace). Mě osobně se návrh jeví jako dobrý kompromis průniku všech požadavků.
Dále jsem zjišťoval informace ohledně zmiňovaného dendrologického průzkumu na stávající stromy v parku. Píše se o něm i v Hostivickém měsíčníku 7+8/2017 v příspěvku Ing. Machka.
- Žádný posudek ani povolení na kácení dosud není, ale bude městem zadán.
- Město počítá s výraznější výsadbou ve spodní části travnatých ploch v prostoru mezi školou a školkou. Zřejmě to bude v rámci tradiční akce “vítání občánků”
- Na stávající zeleň zpracuje odbor životního prostředí odborné posudky (vedoucí, p. Kerouš má oprávnění) a navrhne úpravy (prořezy apod.), a obnovu u přestárlých stromů. U této
nové výsadby pan starosta přislíbil obnovu vzrostlými stromy.
U zásahů do zeleně a doplnění výsadby bych doporučoval postup “být u toho od začátku”. Vyhneme se tak případným překvapením. Za vedoucím odboru životního prostředí se chystám příští týden, zprávu podám následně.
Miroslav Vlk